HAMBURGER HÜTTEN
ARCHITEKTURBÜRO





NEUBAU BETRIEBSGEBÄUDE | HOLLERN-TWIELENFLETH, NIEDERSACHSEN | 2011 | LPH 1-4
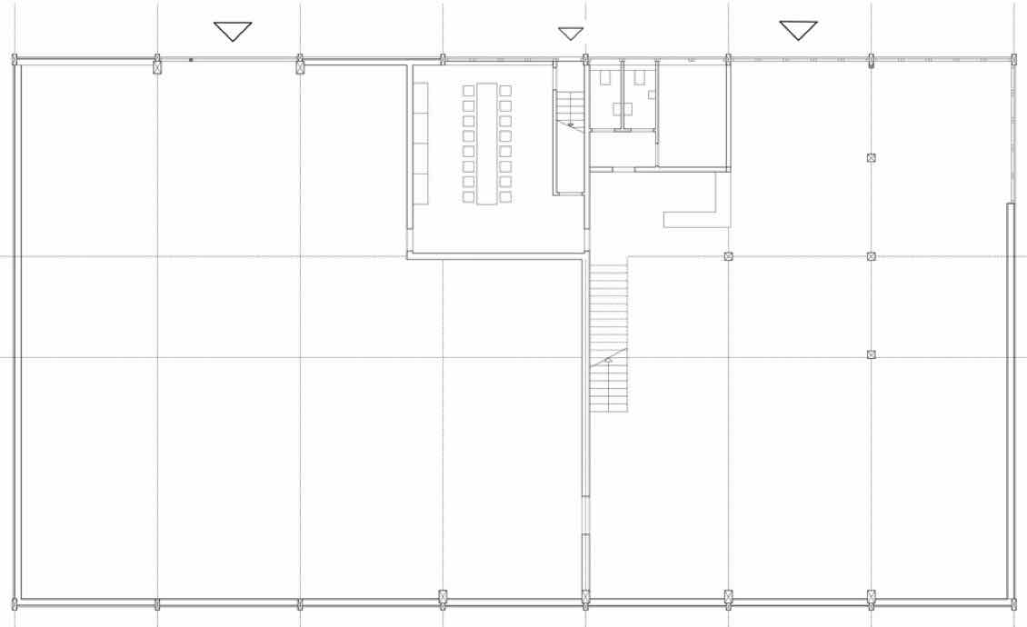
EIn heterogenes Nutzungskonzept und dezidierte Forderungen der Bauaufsicht führten im Enwurfsprozess zu einer bewegten und doch schlichten Gebäudegeometrie, die ein- und zweigeschossige, große und kleine, offene und geschlossene, handwerkliche und buchhalterische, öffentliche und betriebsinterne Räumlichkeiten unter einem Dach vereint.
Acht Holzbinder bedachen die neue Betriebshalle eines expandierenden Bauunternehmers aus dem Alten Land. Das Dachtragwerk fächert sich zum öffentlichen Teil des Gebäudes zweigeschossig auf. Hier liegt hinter dem Empfang die Musterausstellung. Entlang einer Galerie im Obergeschoss sind Büro- und Archivräume angeordnet.
Der rein betriebliche Bereich im niedrigeren Teil des Gebäudes beherbergt die Lagerhalle und einen Mannschaftsraum sowie seperat zugängliche Aufenthaltsräume mit Küche und Bad im Obergeschoss.
